
Suunnittelemme rakennuksia yksityishenkilöille ja yrityksille pihasaunoista rivi- ja paritaloihin sekä hallirakennuksia. Tarjoamme kattavat suunnittelupalvelut uudisrakentamiseen ja peruskorjaushankkeisiin koko Suomen alueelle.
Vuonna 2025 voimaan tulleen rakentamislain mukaan alle 30 m2 rakennukset ja 50 m2 katokset ovat vapautettuja rakennusluvasta. Niiden pitää kuitenkin täyttää palo- ja muut rakennuspaikan erityisvaatimukset, ja rakenteiden osalta kantavuuden tulee olla kunnossa.

Pääsuunnittelija huolehtii suunnitteluprosessista kokonaisuudessaan ja varmistaa, että jokaisen erityisalan suunnittelijalla on yhtenevät lähtötiedot suunnittelua varten.
Pääsuunnittelija tekee lupahakemuksen ja on vuorovaikutuksessa rakennusvalvonnan kanssa. Näin rakentaja voi keskittyä itse rakentamiseen, kun lupaprosessi etenee sujuvasti ammattilaisen hoitamana.
Laadimme rakennuslupapiirustukset pientalojen uudisrakentamis- sekä peruskorjaushankkeisiin. Saat meiltä kaikki rakennuspiirustukset, joita tarvitaan rakennusluvan hakemiseen: asema-, pohja- ja julkisivupiirustukset, rakennuksen leikkauspiirustukset sekä rakenneleikkaukset.
Autamme teitä suunnittelutyön alusta asti luomaan juuri teidän tarpeidenne mukaisen kodin. Ammattisuunnittelija osaa ottaa kantaa tilaratkaisuihin sekä miettiä rakennetta niin toimivuuden kuin kustannuksienkin kannalta.


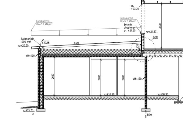
Laadimme rakennesuunnitelmat puu-, teräs- ja betonirunkoisiin rakennuksiin. Maarakentamisen osalta teemme myös betonisia tukimuureja.
Rakennesuunnitelmat ovat tärkeitä niin rakenteen toimivuuden kuin hankkeen taloudellisuuden kannalta. Rakennesuunnitelmat määrittävät rakenteissa käytettävät materiaalit sekä rakennevahvuudet. Tästä johtuen rakennesuunnitelmat ovat tärkeä osa laatusuunnitelmaa. Myös omakotitaloihin ja autotalleihin tulee olla rakennesuunnitelmat, jotka toimitetaan rakennusvalvontaan ennen rakentamisen aloittamista.
Perustussuunnitelmiin kuuluu routasuojaus, salaojitus ja varsinaiset talon perustukset. Perustussuunnittelu tehdään aina pohjatutkimuksen perusteella.
Yleensä käytetään niin sanottua matalaperustusta eli sokkelia, joka tehdään betonista tai harkoista. Maaperän ollessa kantavuudeltaan heikkoa käytetään paaluperustusta, kohteesta riippuen joko teräs- tai betonipaaluja käyttäen.


Suomen rakennuskanta vanhenee ja sitä mukaa korjaussuunnittelun tarve kasvaa. Erityisesti 70-luvun valesokkelirakenteita korjataan edelleen. Usein rakennus on kuitenkin rungoltaan hyvä, jolloin korjaaminen on taloudellisesti kannattavaa.
Korjaussuunnittelussa tulee ottaa huomioon rakennuksen alkuperäiset piirteet sekä nykyiset rakentamismääräykset. Korjaussuunnittelu on luvanvaraista, jos muutetaan kantavia rakenteita, ulkonäköä tai tehdään energiatehokkuuteen vaikuttavia muutoksia.
Ota yhteyttä puhelimitse, sähköpostitse tai täyttämällä yhteydenottolomake. Kerro projektistasi, niin laadimme sinulle tarjouksen.